当前位置:鞍山
登录 | 注册 | 辽阳装修公司十佳服务电话:0419-3136000
搜索
选择城市

山西省

河南省

山东省

北京

湖南省

吉林省

首页 / 装修攻略 / 装修流程/装修后-入住阶段/明星家居 / 320㎡顶层复式,惊艳的极简黑白灰!
320㎡顶层复式,惊艳的极简黑白灰!
2020-02-19 11:18 加入收藏

极简生活 

极简装修风格,黑白灰装修

极简装修风格,黑白灰装修

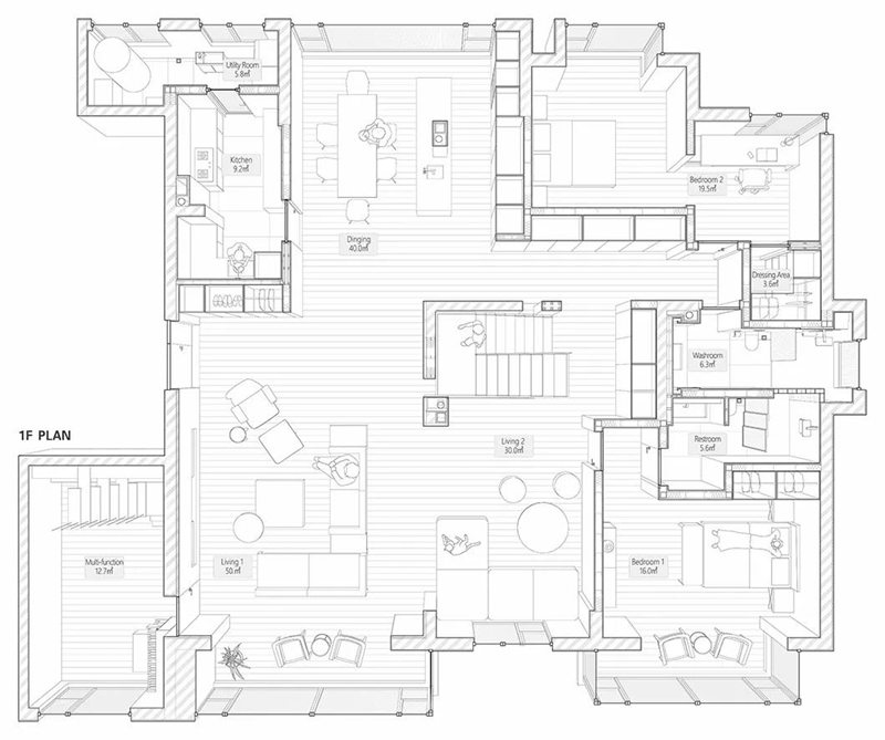
      首层除会客、起居、餐厅及附属功能外,是以两个未成年孩子的生活为中心,有适宜高度的儿童活动室,独立的卧房及贴心设计的儿童独立双卫生间,在受限颇多的原始结构中将功能和布局运用至恰到好处。

极简装修风格,黑白灰装修

极简装修风格,黑白灰装修

      设计灵感来自东方的宁静,挖掘客户深层精神需求,旨在打造一个让人舒缓灵魂和摆脱城市生活烦恼的住宅空间。

极简装修风格,黑白灰装修

      抹去无意义的装饰,低干预痕迹设计,剥离表象,直达质朴的本质。

极简装修风格,黑白灰装修

极简装修风格,黑白灰装修

      极简的纯粹生活,意味着过一种精挑细选、真正成熟的生活方式。

极简装修风格,黑白灰装修

极简装修风格,黑白灰装修

      位移的楼梯重新定义了格局,走廊和客厅之间的大部分墙壁被拆除,以建立贯穿公寓的视觉轴,通过干净的线条和中性的白色墙壁凸显空间的流动性。

极简装修风格,黑白灰装修

极简装修风格,黑白灰装修

极简装修风格,黑白灰装修

      双起居室其中层高较低一间兼作投影室,顶部隐藏着家庭电子设备。中西厨分开的西厨配合餐厅,为社交烹饪提供了充足的空间。

极简装修风格,黑白灰装修

极简装修风格,黑白灰装修

      上下楼之间的空间具有视觉上的连续性,空间由大面积玻璃连接起来,新的过渡空间和中央楼梯确保了垂直的视觉和界面连接。

极简装修风格,黑白灰装修

极简装修风格,黑白灰装修

极简装修风格,黑白灰装修

      以中空的客厅延展设计情绪,限制内的色彩和材质关系将功能有机的统一。巧妙的塑造各楼层的机能空间,恰如其分的营造出生动、不俗的居住氛围。

极简装修风格,黑白灰装修

极简装修风格,黑白灰装修

极简装修风格,黑白灰装修

      各个空间内克制的材料应用,再次体现此次低干预痕迹设计和“HOME BACK HOME”的精髓,和谐简要的还原家居本质。

极简装修风格,黑白灰装修

极简装修风格,黑白灰装修

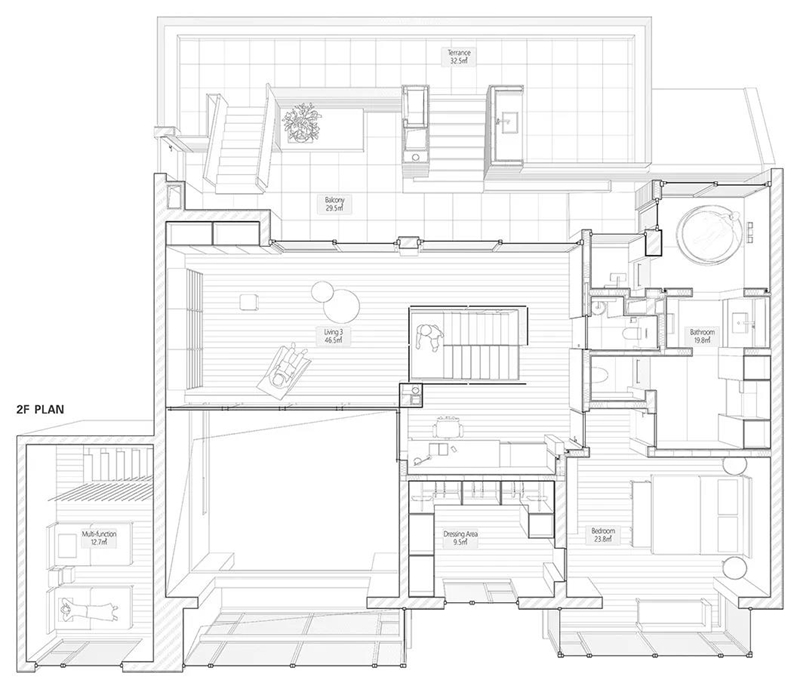
      二层以主人房套间为核心,阳光下的卫生间和书房更好的利用了顶层的位置优势。

极简装修风格,黑白灰装修

极简装修风格,黑白灰装修

极简装修风格,黑白灰装修

5d62349117b2065a2fd8bb548044c627783.jpg

      简约和舒适是这间公寓的属性,豪华被重新定义,并通过内敛的设计得以体现。

 平面图 

极简装修风格,黑白灰装修

极简装修风格,黑白灰装修

极简装修风格,黑白灰装修

      随着接触的视界越来越广阔,我们的一生会经历很多次审美和功能的革命,每个阶段对物件的主观看法也会不同。

上一篇:简而不凡的轻奢之美 | 信德华府90㎡现代风格 下一篇:这个家美的清新而有格调!| 首山华府133㎡美式风格

装修预算计算器